Selection of 5 Houses with Private Pool & Views
Bedrooms
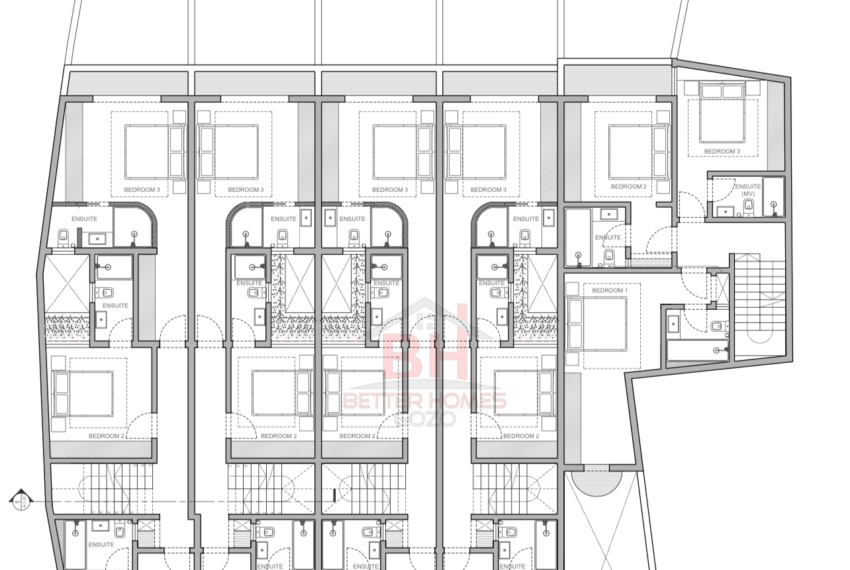
3
Bathrooms
4/5
Type
Farmhouse, House of character, Residential, Terraced Houses, Villa
Status
For Sale





























